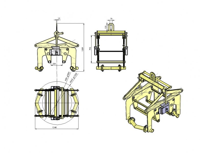
WIRE COIL PRESSURE GRIPPERS
Type: SKS
Wire coil pressure grippers with outer grip - SKS Q/D - serve for hanging manipulation with wire coils, with gripping average of D mm and their maximum load capacity of Q kg. This grippers works with automat - it's means - only with crane manipulation. This grippers are designed only for manipulation with wire coils.




